返回顶部
字号:大中小
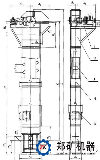
1. 产品介绍 TD带式提升机采用橡胶带作牵引件,适用于输送松散密度ρ<1.5t/m³的粉状、粒状、小块状的无磨逐性、半磨琢性物料。被输送的物料温度不超过60℃,如采用耐热胶带,温度应不超过180℃。 2. 应用范围 用于冶金、陶粒、轻工、粮食、化工、船舶等行业。 3. 适用物料 适用于输送松散密度ρ<1.5t/m³的粉状、粒状、小块状的无磨逐性、半磨琢性物料,如粉灰、水泥、沙、陶粒、粮食等。 4. 产品优势 斗式提升机具有输送量大,提升高度高,运行平稳可靠,使用寿命长等优点。采用混合式或重力式卸料,挖取式装料。斗式提升机的优点是:横断面上的外形尺寸较小,可使输送系统布置紧凑;提升高度大;有良好的密封性等。 5. 结构组成 斗式提升机主要由传动装置、上部装置、料斗与提升胶带、中部标准节、中部带检视门标准节、下部装置等部件组成。 提升机结构特点: 1) 斗式提升机具有输送量大,提升高度高,运行平稳可靠,使用寿命长等优点。采用混合式或重力式卸料,挖取式装料。斗式提升机的优点是:横断面上的外形尺寸较小,可使输送系统布置紧凑;提升高度大;有良好的密封性等。缺点是:对过载的敏感性大;料斗和牵引构件易损坏。 2) TD型提升机为便于使用要求具有下列不同制法和装法: 按上部区段卸料口的型式分为两种制法: X1制法----带有倾斜法兰盘的卸料口 X2制法----带有水平法兰盘的卸料口; 按下部区段进料口的型式分为两种制法: J1制法----进料口的底与水平面成45°角; J2制法----进料口的底与水平面成60°角; 按传动装置提升机分为左装、右装两种制法: 面对进料口,传动装置在左边为左装; 面对进料口, 传动装置在右边为右装。 3)TD型斗式提升机外形结构示意图: 传动装置 上部装置 料斗与提升胶带 中部标准节 中部带检视门标准节 下部装置 4)TD型斗式提升机的装载形式主要为掏取式: 掏取式(图4.1) 由料斗在物料中掏取装载。掏取式主要用于输送粉末状、颗粒状、小块状的无磨琢性或半磨琢性的散状物料。掏取式的料斗通常为稀疏布置,并允许料斗的运行速度较高,为0.8-2m/s 5)TD型斗式提升机的卸载形式主要有三种,即离心式、离心重力式及重力式。(如下图所示) 6)TD斗式提升机选型所需参数 原始参数: ①物料名称; ②物料物性:包括粒度(mm),松散密度ρ(t/m³),温度、湿度粘度、磨琢性等; ③实际输送量Q(m³/h); ④需要提升高度H(m) 6. 工作原理 物料从斗式提升机的下部装置的进料口进入料斗,通过传动装置带动链轮转动,链轮带动链条运动的同时固定在链条上料斗一起向上运动,通过离心力及重力作用将物料从上部装置的出料口卸出。 7. 技术参数表: 8. 产品现场照片 






Copyright © 企业集团有限责任公司 版权所有 京ICP备100011043号